


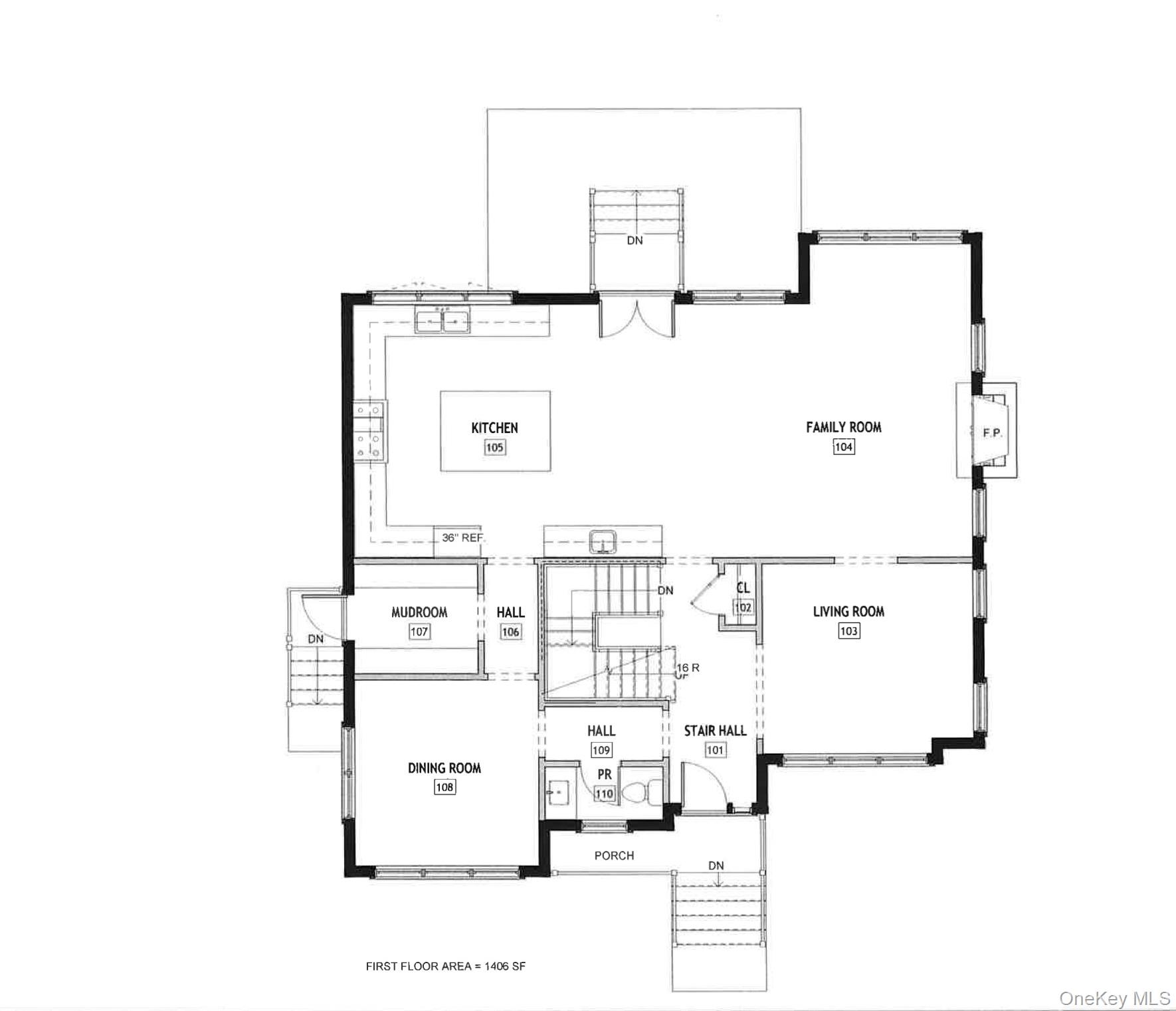
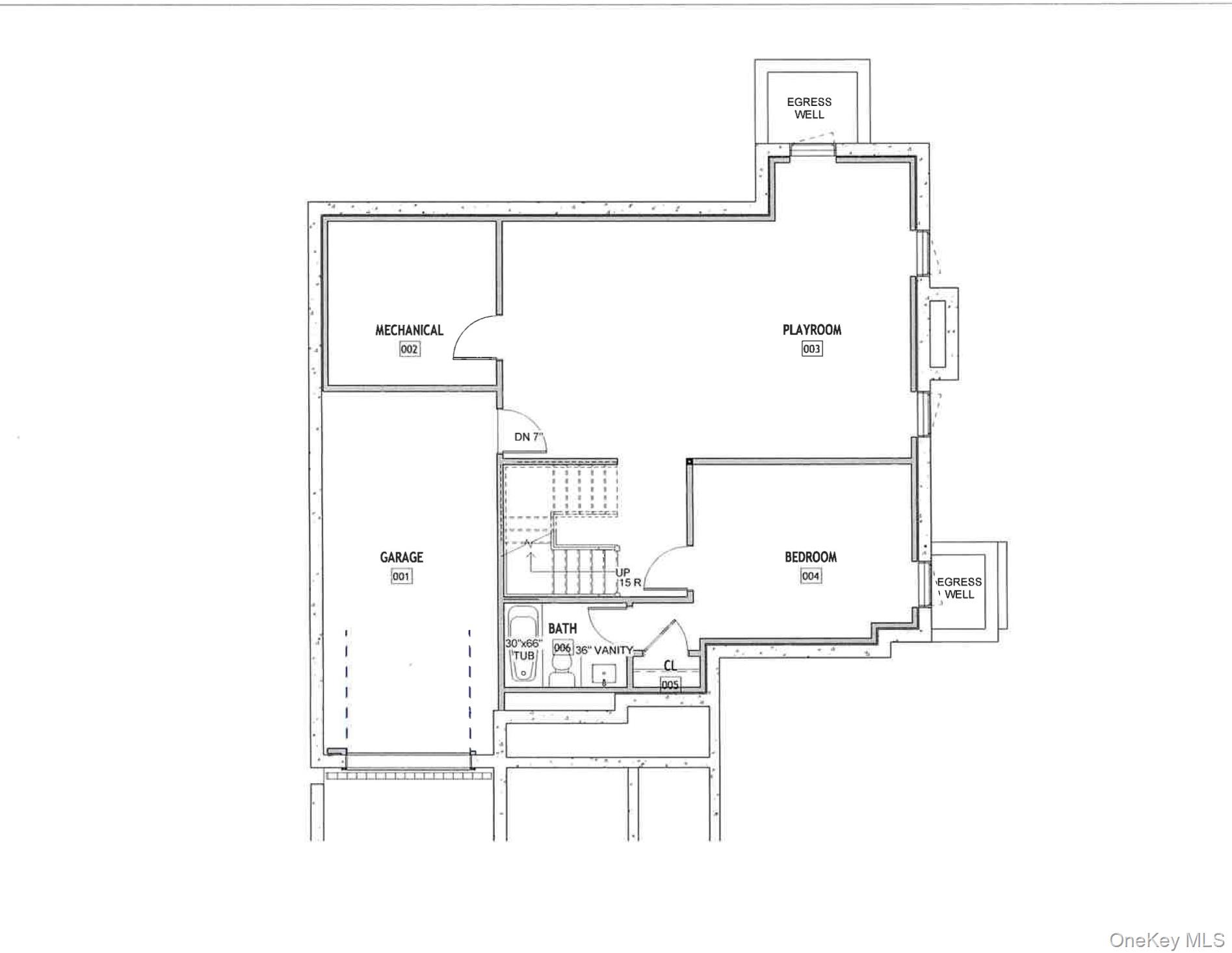
To-be-built 5-bedroom Colonial located in the desirable Glen Oaks neighborhood of Rye, offering thoughtfully designed living spaces and exceptional flow. The main level features an open-concept kitchen and family room with a gas fireplace and doors leading to a rear patio—ideal for indoor-outdoor living and entertaining. The chef’s kitchen is appointed with a large center island, natural stone or quartz countertops, Thermador appliances, and high-end designer finishes and hardware. It flows seamlessly into the spacious great room, creating the perfect setting for everyday living and gatherings. A custom-outfitted mudroom with built-ins adds everyday convenience, while the formal dining room and living room provide elegant spaces for entertaining. Upstairs, the primary suite offers a peaceful retreat with vaulted ceilings, a spa-like bath featuring a double vanity, soaking tub, and custom closets. An en-suite bedroom with a private bath and two additional bedrooms with a shared bath complete the second floor. The finished lower level includes an additional bedroom and full bath, a recreation area, and ample storage space. This home offers all the hallmarks of high end new construction, generous ceilings throughout, designer finishes, light filled rooms with plenty of windows and a thoughtful layout. There is still time to customize finishes and details to make this home your own. Expected completion is the end of 2026.
| 10 hours ago | Listing first seen on site | |
| 10 hours ago | Listing updated with changes from the MLS® |